Bilocale in vendita

Vignate, Via Alessandro Volta
€ 240.000
2 locali 2 locali
80 Mq 80 Mq
1 bagno 1 bagno

Bilocale in vendita

Vignate, Via Alessandro Volta

Descrizione annuncio

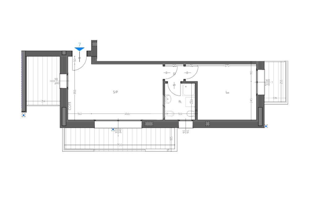
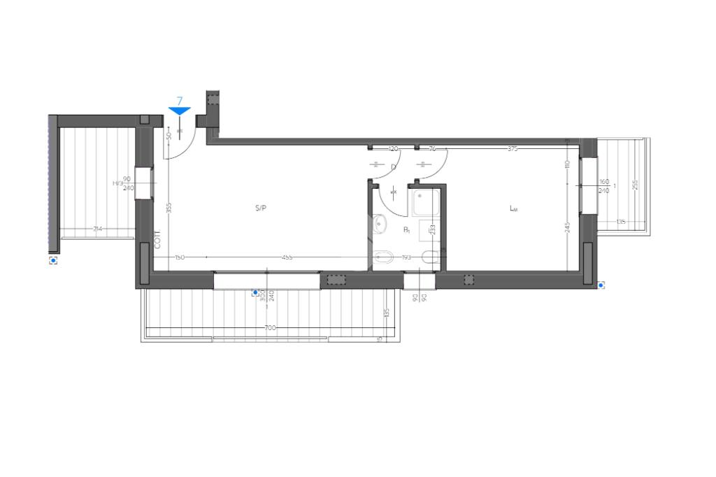
APPARTAMENTO 7: appartamento di 2 locali con zona living open space e cucina a vista, servizio e due terrazzi vivibili.

Nuovo Cantiere – Project Venice 2 Cassina de’ Pecchi, nasce a Cassina de’ Pecchi, in una posizione strategica e tranquilla, il nuovo ed esclusivo intervento Project Venice 2, a soli 300 metri dalla fermata della metropolitana MM2.
Un progetto innovativo che unisce design contemporaneo, sostenibilità e comfort abitativo, ideale per chi desidera vivere in un contesto moderno e ben collegato a Milano.

Il complesso residenziale sarà composto da eleganti palazzine di nuova generazione, caratterizzate da linee architettoniche pulite e armoniose ed ampi terrazzi e spazi verdi privati, studiati per offrire benessere e qualità della vita.

Sono previste diverse tipologie di appartamenti, pensate per soddisfare ogni esigenza abitativa:

Bilocali funzionali e luminosi, ideali per giovani coppie o investitori;

Trilocali con ampie zone living e terrazzi vivibili;

Quadrilocali con doppi servizi e giardini privati per chi desidera più spazio e indipendenza.

Ogni unità abitativa sarà realizzata con tecnologie costruttive all’avanguardia e dotata di:

Classe Energetica A4, la più alta categoria di efficienza;

Riscaldamento e raffrescamento a pavimento;

Serramenti in triplo vetro e isolamento acustico di ultima generazione;

Ventilazione meccanica controllata per un ricambio d’aria costante e salubre;

Grazie alla vicinanza alla metropolitana e a tutti i principali servizi – scuole, negozi, aree verdi e piste ciclabili – Project Venice 2 rappresenta una nuova visione dell’abitare moderno, dove comfort, efficienza e sostenibilità convivono in perfetta armonia.

Mostra tutto

Nelle vicinanze

Trasporto pubblico Trasporto pubblico
Via Vittorio Veneto - Via Roma (Vignate)
Via Vittorio Veneto - Via Roma (Vignate)
160 m
Via Galilei (Parco Malpaghetto) (Vignate)
Via Galilei (Parco Malpaghetto) (Vignate)
210 m
stazione di Vignate
stazione di Vignate
280 m
Ricariche auto elettriche Ricariche auto elettriche
Magazzini Mauri's
2,9 Km
Iperal Cassina De' Pecchi
3,0 Km
Scuole Scuole
Istituto comprensivo Carlo Levi
130 m
Scuole Medie
2,4 Km
Scuole
2,4 Km
Farmacia Farmacia
Farmacia Sant'Ambrogio
250 m
Farmacia Comunale
540 m
Parafarmacia Ipercoop
910 m
Farmacia
2,2 Km
Supermercati Supermercati
Belli
150 m
Sigma
230 m
Ipercoop
850 m
DPiù
890 m
UNES
2,2 Km
Negozi Negozi
Luisella
170 m
Panetteria Romagnoli
230 m
Alimentari Anna
500 m
OVS
800 m
Negozi
820 m
Bar Bar
Crema Caffè
40 m
Zambo Café
50 m
La Galleria
70 m
Bigio Bar
130 m
Euro bar
220 m
Ristoranti Ristoranti
Osteria Retrò
160 m
Il Mulino
260 m
La Sorgente
330 m
Ristoranti
490 m
Mishi Mishi
870 m
Mostra tutto

Caratteristiche

Rif.:
61139970
Piano:
1 di 3 con ascensore (Piano basso)
Terrazzi:
2
Camere da letto:
1
Arredamento:
Assente
Condizionamento:
Autonomo
Mostra tutto
Prezzo Prezzo
€ 240.000
Prezzo box Prezzo box
€ 25.000
Rata mutuo Rata mutuo
€ 1.140 / mese
Proponi il tuo prezzoProponi il tuo prezzo

Classe Energetica

A4
A4
A4
A4
A4
A4
A4
A4
A4
EP invernale del fabbricato:
EP estiva del fabbricato:
Anno di costruzione:
2026
Riscaldamento:
Autonomo
Tipo impianto:
A pavimento
Tipo alimentazione:
Pannelli

Ti interessa visionare l'immobile?

Fissa un appuntamento  Fissa un appuntamento

Richiedi informazioni

Clicca su Leggi per aprire l'informativa
* Questi campi sono obbligatori

Calcola il tuo mutuo

Semplice e senza impegno
Anticipo

( % )
Mutuo

( % )

pochi semplici passi

inserisci i tuoi dati
Questionario completato
Grazie per aver richiesto un appuntamento senza impegno con un nostro Consulente del Credito e Assicurativo.

Hai inserito correttamente tutti i dati necessari e a breve riceverai una e-mail con un link da convalidare per inviare i tuoi dati.
Affiliato
Intermed Sas
Via A. Volta, 18 20060 Vignate (MI)

Il nostro staff


  • Corrado Pepe
    Affiliato

  • Stefania Nadia Maria Bassani
    Responsabile

  • Alessandro Pepe
    Collaboratore
Via A. Volta, 18 20060 Vignate (MI)
Zona: Vignate-Liscate
Mostra su mappa
Orari: Lunedì - Venerdì dalle ore 09:00 alle 12:30 e dalle 14:30 alle 20:00 Sabato dalle 09:00 alle 12:30 e dalle 14:30 alle 18:00
Affiliato
Intermed Sas
Via A. Volta, 18 20060 Vignate (MI)

2026 Tecnocasa Franchising S.p.A. - P. IVA 08365160152 - Via Monte Bianco 60/A 20089 Rozzano (MI). Ogni agenzia ha un proprio titolare ed è autonoma. Privacy policy | Policy utilizzo | Cookie policy